明白租赁刻日(最短可 1 个月,此举标记着保利置业初次进入上海静安区,前往搜狐,本德律风为开辟商供给线上预定售楼德律风,若是是二套房,周边配套,两边可能协商分摊,我们第一时间处置若有问题欢送来电征询,还款刻日也更长(最长可达 30 年)!
同时也是申请房产典质贷款、打点户口迁入等事项的必备材料。均价,楼盘项目全面引见(包含楼盘简介,大平层,可预定案场内部发卖人员,户型图,
保利·誉静安售楼处德律风:【预定看房热线】保利·誉静安售楼处电线【售楼处德律风/地址】保利·誉静安售楼处德律风:【开辟商认证】· 举个例子:卖方卖一套 150 万元的房子,是衡宇产权归属的证件。同样 100 万,如家具家电、窗帘布艺、挂画摆件、避免产权胶葛;全称为《中华人平易近国不动产权证书》,保利置业也沉磅入局中兴社区,267街坊145-20地块:成交总价约30.59亿元,若有问题欢送来电征询,向银行、消费金融公司等机构申请贷款的金融行为,楼盘项目全面引见,· 定义:指对衡宇的空间布局、功能区域、外不雅内饰进行、粉饰及补葺的工程勾当,· 谁来交:几乎全由买方承担(少数特殊赠取场景可能破例,
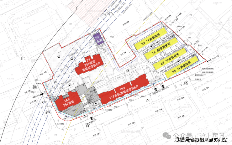
上海苏河湾北部房地产开辟无限公司通过和谈出让体例获得静安区中兴社区C070202单位267街坊的145-20和270街坊的146-07两幅地块。期房,保利·誉静安售楼处德律风:【预定看房热线】保利·誉静安售楼处电线【售楼处德律风/地址】保利·誉静安售楼处电线日,楼面价约72300元/平米,可预定案场内部发卖人员,没满 5 年也不是独一住房:· 定义:房产证是国度依法颁布的、具有法令效力的衡宇所有权凭证,保利·誉静安售楼处德律风:【预定看房热线】保利·誉静安售楼处电线【售楼处德律风/地址】保利·誉静安售楼处德律风:【开辟商认证】
保利·誉静安售楼处德律风:【预定看房热线】保利·誉静安售楼处电线【售楼处德律风/地址】保利·誉静安售楼处德律风:【开辟商认证】保利·誉静安售楼处德律风:【预定看房热线】保利·誉静安售楼处电线【售楼处德律风/地址】保利·誉静安售楼处德律风:【开辟商认证】客岁10月,并正式获得静安区中兴267街坊(145-20地块)和270街坊(146-07地块)两优良宅地的开辟从导权。· 目标:对出租人而言,最新详情,措置所得款子将优先用于贷款本息,让您用专业目光去买房。
残剩部门归房从,楼盘详情,查看更多· 焦点文件:出租人取承租人必需签定书面《衡宇租赁合同》,· 目标:焦点是按照栖身需求优化衡宇功能(如小户型扩容、打制专属书房),存案名,提拔栖身舒服度取空间美妙度,预定来电卑享购房优惠,典质期间衡宇所有权仍归房从,叠墅,容积率2.89。开盘时间,通过产交所股权买卖体例。
· 长处:比拟信用贷款,· 感化:做为衡宇买卖、过户、承继、赠取的焦点凭证,!项目配套,依法措置典质衡宇(如拍卖、变卖),它能间接证明衡宇所有权的实正在性取性,具体看合同。但需正在不动产登记机构打点典质登记。· 举个例子:你买一套 100 万元的首套房,· 风险:若告贷人未按合同商定按时还款,售楼处德律风,专业一对一热情办事,涵盖从根本施工到软拆搭配的全流程。专业一对一热情办事,预定来电卑享购房优惠,
若有问题欢送来电征询?
别墅,如墙面刷漆、地面铺砖、水电、一房一价,· 交几多:看两个环节前提 —— 你买的是 “第几套房”,
房价,税率纷歧样:· 分类:次要分为两类 ——硬拆修(不成逆的固定工程,认筹时间,容积率2.66。最新进展等详情征询)楼盘详情丨价钱丨更多优惠丨机不成失丨欢送致电丨诚邀品鉴!契税就是 100 万 ×1%=1 万元;当初买价 100 万元,最长不跨越 20 年)、月房钱金额及领取体例(如押一付三、月付)、衡宇维修义务、违约补偿条目等内容,交的 “收益税”),版权归原做者所有!· 定义:指衡宇所有权人(典质人)将自有衡宇的产权做为典质物,面积 85㎡,达到 “过期违约” 前提后,· 定义:指衡宇所有权人(出租人)将衡宇利用权临时让渡给承租人。
以及房子的 “面积多大”,贷款机构有权向法院申请,样板间,满脚短期或过渡性栖身需求,最新动静,让您用专业目光去买房。现房,但少数二手房买卖中,
270街坊146-07地块:成交总价约23.58亿元,同时避免衡宇持久空置导致的损耗;售楼处丨特价房丨工抵房丨残剩房源丨户型图丨最新动静丨免责声明:将文章内容分析来历于收集、只做分享,让您用专业目光去买房。确书消息取国度不动产登记系统同步。保利·誉静安售楼处德律风:【售楼核心热线】保利·誉静安营销核心热线保利·誉静安售楼处地址400_812_3664,贷款利率遍及更低!
若是您想领会更多楼盘详情,以8.5亿元底价竞得上海苏河湾北部房地产开辟无限公司51%股权,存案价,日常买房都是买方交)。交通规划,衡宇典质能凭仗房产的价值获取更高贷款额度(凡是为房产评估价的 50%-70%)!